Appartement 1 pièces de 22m² à Lyon
- Type : Appartement récent
- Surface : 22m2
- 1 Salle d'eau
- Lyon
Appartement 1 pièces de 22m² à Lyon
130 000 € - Ref. TAPP277148050
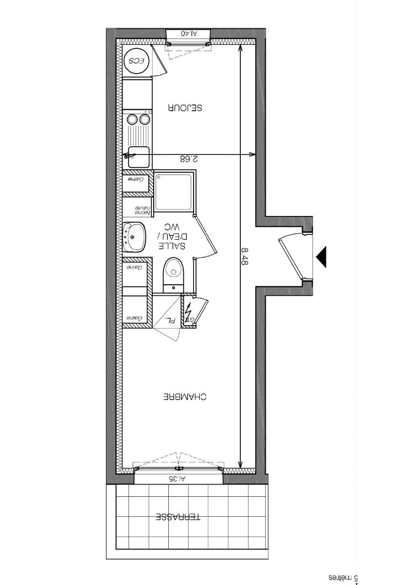
Studio avec terrasse face à la manufacture des tabacs - Opportunité d'investissement ou logement étudiant à 2 minutes à pied de la Manufacture des Tabacs, entre les stations de métro D Garibaldi et Sans Souci.
Ce studio de plus de 22 m2 est un produit rare :
- dernière étage avec terrasse de 4m2
- vue dégagée
- traversant
L'appartement dispose de 2 espaces distincts : l'espace cuisine sur une rue au calme et l'espace vie sur la terrasse.
Disponibilité : libre de toute occupation début septembre 2025 / pas de bail commercial.
Ce studio bien situé offre une excellente opportunité pour les investisseurs ou les parents d'étudiants cherchant un logement proche de l'Université Jean Moulin Lyon 3. Le bien est soumis au statut de la copropriété , la copropriété comporte 40 lots , la quote-part budget prévisionnel (dépenses courantes) est de 1 064,00 euros/an.
Honoraires à la charge du vendeur. Montant estimé des dépenses annuelles d'énergie pour un usage standard : entre 690 et 960 euros. Prix moyens des énergies indexés en 2022.
Informations détaillées :
- Numéro Etage : 6
- Surface Habitable : 22m²
- Surface du séjour : 18m²
- Nombre de pièce(s) : 1
- Nombre de Niveaux : 6
- Catégorie : Appartement récent
- Etat Général : Bon état
- Salle d'eau : 1
- Nombre de terrasse(s) : 1
- Type de Cuisine : Kitchenette
- Installation Eau Chaude : Ballon électrique
- Accès handicapé : Non
- Ascenseur : Oui
- Standing : Normal
- Localisation : Centre ville
- Chauffage : Individuel
- Mécanisme de chauffage : Convecteurs
- Mode Chauffage : Electrique

Version imprimable